SafeRing-12 Fully insulated inflatable ring switchgear with Insulation Protection
Type Designation

| 1 | Manufacturer Code |
| 2 | Model Type |
| 3 | Rated Voltage: 12 Rated voltage 12KV; 24 Rated voltage 24KV |
| 4 | Cabinet Type: C: Load Switch Cabinet; F: Fuses Switchgear Cabinet; V: Vacuum Circuit Breaker Cabinet; M: Measuring cabinet; SV,SL,Bus Sectionalizing Switchgear; PT: PT Cabinet(Co-enclosure cabinet composed of any combination of C,F,V,S,VSL.) |
| 5 | Rated Current: 630 Rated Current 630A; 1250 Rated Current 1250A |
| 6 | Expansion Type: I: Left Extension; D: Right Extension; ID: Both Sides; Blank: extendable |
| 7 | Cable entry/exit method: L: Left; R: Right; LR: Both; Blank:Front |
Performance Indicators
| Unit Code | Description | Unit Code | Description |
| C | Standard Single-Bushing Load Switch Unit | - | Top Busbar Bushing |
| F | Load Switch-Fuse Combination Unit | SL | Bus Coupler Unit |
| V | Circuit Breaker Unit | M | Metering Unit |
| D | Cable Incoming Unit (Non-Switch) | PT | PT Unit |
| + | Busbar Side Bushing | 1K2(4) | Load Switch Unit with Double Bushings |
| SF6 Gas Pressure | Absolute Pressure at 20℃:1.4 BAR | Normal Operating Environmental Conditions | ||||
| Annual Gas Leakage Rate | ≤0.2%per year | Maximum Temperature | 40℃ | |||
| Protection Level | IP67 | Minimum Temperatur | -40℃ | |||
| Gas Chamber Stainless Steel Thickness | 3.0mm | Maximum Average Relative Humidity | ≤95% | |||
| Altitude | ≤2000 meters | |||||
| Busbars | Color | |||||
| Switchgear Busbar | 400mm²Cu | Switchgear Front Panel | RAL7012 | |||
| Switchgear Grounding | 150mm²Cu | Side Panels & Cable Room Front Cover | RAL7035 | |||
| Compliant Standards | ||||||
| GB/T11022 | GB3906 | GB1985 | GB3309 | IEC60129 | IEC60298 | |
| GB16926 | GB38041 | GB1984 | IEC60056 | IEC60265 | IEC60420 | IEC60694 |
product Display
Technical Parameters
| Model | C Module | F Module | V Module | CB Module | |||
| Composite Switch | Combined Electrical Apparatus | Vacuum Switch | Disconnecting/Earthing Switch | Vacuum Circuit Breaker | Disconnecting/Earthing Switch | ||
| Rated Voltage | kV | 12 | 12 | 12 | 12 | 12 | 12 |
| Rated Frequency | Hz | 50 | 50 | 50 | 50 | 50 | 50 |
| Power Frequency Withstand Voltage (Phase-to-Phase/Port) | kV | 42/48 | 42/48 | 42/48 | 42/48 | 42/48 | 42/48 |
| Lightning Impulse Withstand Voltage | kV | 75/85 | 75/85 | 75/85 | 75/85 | 75/85 | 75/85 |
| Rated Current | A | 630 | Note" | 630 | 1250/630 | ||
| Rated Closed-loop Breaking Current | A | 630 | |||||
| Rated Cable Charging Breaking Current | A | 135/135 | |||||
| Rated Short-circuit Making Current (Peak) | A | 50 | 80 | ||||
| Rated Peak Withstand Current | kA | 50 | |||||
| Rated Short-time Withstand Current | kA/3s | 20 | |||||
| Rated Short-circuit Breaking Current | kA | 31.5 | 20 | 25 | |||
| Rated Transfer Current | A | 1750 | |||||
| Maximum Current of Associated Fuse | A | 125 | |||||
| Loop Resistance | -n | ≤300 | ≤600 | ||||
| Mechanical Life | Operations | 5000 | 3000 | 5000 | 2000 | 5000 | 5000 |
| Note: 1) Depends on the current rating of the fuse | |||||||
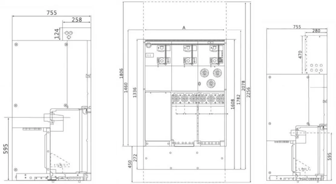
MR-SafeRing-12 Gas-insulated Switchgear Structure

| 1. Fuse Compartment | 5. Serial Number Labe1 | 9. Cable Compartment | 13. Load Switch Operation Port |
| 2. Capacitive Voltage Indicator | 6. Schematic Diagram | 10. RTU Mounting Compartment | 14. Earthing Switch Operation Port |
| 3. Short-circuit Ground Fault Indicator (Accessory) | 7. Fuise Blow Indicator | 11. Key Lock (Accessory) | 15. Disconnector Operation Port |
| 4. Pressure Indicator | 8. Panel-mounted Padlock Device | 12. Circuit Breaker Operation Port | 16. Trip Button |
| 17. Close Button |







Claire
Mr.Fu

Claire









