D165T LV Moulded Case Pole Mounted Breaker Digital Trip Unit
Type Designation
LV Pole mounted circuit breakers
The protection and management of MV/LV transformers in rural areas requires the use of specific circuit breakers adapted tosignificant load imbalances, and thus guarantees complete power usage even in unbalanced conditions. These devices (4 poles, three of which are protected) use air-break technology with chambers with metal partitions to cut the arc. Low voltage pole mounted circuit breaker D165T with a digital trip unit.
Technical Parameters
| circuit breakers | ||
| D165T | D265T | |
| Reference strandard | NH63-S-11 | NH63-S-11 |
| Voltage rating Current rating |
440V 165A |
440V 265A |
| Cutout power Closing power |
4000A 6800A |
6400A 11700A |
| Number of poles Number of outputs |
4 1 output |
4 2 outputs |
| Cable sections | 25/70mm*2 | 50/150mm*2 |
| Breakdown voltage ·pulse/earth ·at 50Hz ·between poles |
20KV 10KV 4KV |
20KV 10KV 4KV |
| Control system | Manual | Manual |
| Installation | on post | on post |
product Display
Working Ambient
Temperature: -40°C ~ +70°C
Humidity: 100%
Altitude: ≤2000m
Wind speed :≤40m/s • H
Note: No fire, no explosion hazards, no chemical c.rrosion and recurrent severe vibration.
Internal Structure Diagram

1. Incoming Wiring Clamp: Enables direct 4-phase power connection without crimping lugs.
2. Incoming Wiring Hole: Provides cable access for both incoming and outgoing connections.
3. Arc Chute Grid: User-replaceable component for effective arc extinguishing.
4. Operation Mechanism: Spring-charged closing mechanism operable via floor-mounted handle.
5. Digital Trip Unit: Configurable for 50/100/160 kVA with embedded current transformers.
6. Load Indicator Trip: Orange indicator drops to trigger trip when load time is reached.
7. Position Indicator: Green marker shows open/closed status through protrusion length.
8. Operation Handle: Controls tripping (downward) and closing (upward) operations.
9. Load Trip Enable/Disable Handle: Activates or deactivates the load trip function.
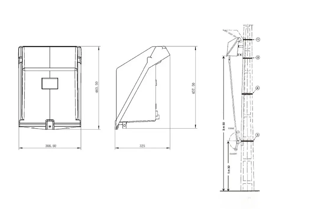
Outline and Installation Dimension








Claire
Mr.Fu

Claire











